Chốt bản vẽ kỹ thuật nhà thờ họ 3 gian 4 vì, 16 cột cho gia đình bác Nhật tại Xuân Trường – Nam Định
Nhà Gỗ Nam Cường vừa hoàn tất việc chốt bản vẽ kỹ thuật và mặt bằng thi công cho công trình nhà thờ họ Trần tại Xuân Trường, Nam Định. Đây là một công trình tâm linh truyền thống với kiến trúc 3 gian 4 vì, 16 cột – được thiết kế chỉn chu, tỉ mỉ từ kết cấu cho đến vật liệu.
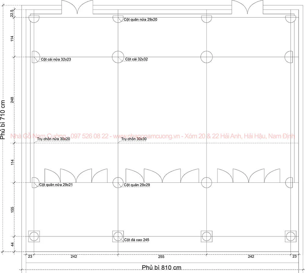
Thông số kỹ thuật nổi bật:
Số lượng cột: 16 cột chính, chia đều cho 4 vì kèo
Cột cái: Đường kính 32cm – tạo thế trụ vững chắc, bề thế
Cột quân: Đường kính 29cm – hài hòa về kích thước và kết cấu
4 cột hiên bằng đá xanh tự nhiên, không chỉ gia tăng tính thẩm mỹ mà còn giúp công trình bền vững hơn trước thời tiết


Vật liệu sử dụng
Công trình sử dụng gỗ Sến chất lượng cao, loại gỗ được ưa chuộng trong thi công nhà gỗ cổ truyền nhờ vào đặc tính cứng chắc, vân gỗ đẹp và độ bền vượt thời gian. Đây cũng là dòng gỗ ít bị mối mọt, cong vênh khi được xử lý đúng kỹ thuật.
Tính thẩm mỹ & ý nghĩa
Căn nhà thờ được thiết kế theo đúng tinh thần từ đường cổ truyền miền Bắc, với hệ mái truyền thống, vì kèo chạm khắc hoa văn tinh xảo và không gian nội thất tối ưu cho việc thờ cúng tổ tiên. Công trình hứa hẹn sẽ là điểm tựa tâm linh vững chắc cho các thế hệ con cháu họ Trần.
Nhà Gỗ Nam Cường – Đơn vị thi công nhà thờ họ, từ đường, nhà gỗ cổ truyền uy tín, chất lượng với hơn 20 năm kinh nghiệm.
Địa chỉ: Xóm 20 & 22, Hải Anh, Hải Hậu, Nam Định
Hotline: 097 526 08 22
Website: www.nhagonamcuong.vn